Miło Cię widzieć!

Ładowanie strony

O projektodawcy

Fundacja Poland Business Run

Fundacja Poland Business Run

Kraków, Polska

Misją Fundacji Poland Business Run jest kompleksowa oraz profesjonalna pomoc osobom z niepełnosprawnościami narządów ruchu, pomoc w ich aktywizacji oraz niwelowanie barier społecznych, a także wsparcie osób zagrożonych amputacją. Fundacja upowszechnia wiedzę na temat niepełnosprawności narządów ruchu oraz stara się wpłynąć na zmianę postrzegania osób z wyżej wymienionymi problemami. W 2018 roku otwiera w Krakowie profesjonalne Centrum Rehabilitacji.

Napisz wiadomość do Projektodawcy

57300 PLN z 57000 PLN

133 Wspierający

Udany! Cel osiągnięty

100%

Model finansowania: "wszystko albo nic". Aby otrzymać środki, projekt musi osiągnąć minimum 100% finansowania do 06.04.2018.

Postawmy na nogi Centrum Rehabilitacji

This project is also available in english version. Click here to change language.

O projekcie

Fundacja Poland Business Run tworzy w Krakowie nowoczesne Centrum Rehabilitacji dla osób z niepełnosprawnościami narządów ruchu. Mamy już przestrzeń i specjalistów. Właśnie rozpoczynają się prace wykończeniowe. Brakuje tylko jednego - profesjonalnego sprzętu do rehabilitacji, z którego bedą mogli bezpłatnie korzystać beneficjenci Fundacji. Pomóż nam w jego zakupie.

 

W 2017 roku przekazaliśmy ponad milion złotych na pomoc 212 osobom z niepełnosprawnościami, finansując zakup sprzętu, protez, rehabilitacji i konsultacji psychologicznych. Dbamy o to, aby w kompleksowy sposób pomagać naszym podopiecznym w powrocie do normalnego życia.

 

Liczba osób, które zwracają się do nas o wsparcie rośnie z roku na rok. Aby takie wsparcie zapewnić, potrzebujemy miejsca, gdzie nasi specjaliści mogliby pracować z podopiecznymi.

Właśnie dlatego postanowiliśmy podjąć decyzję o utworzeniu Centrum Rehabilitacji Fundacji Poland Business Run. W 2017 roku otrzymaliśmy od Grupy Buma 2 lokale użytkowe i nasze marzenia o Centrum stały się rzeczywistością.

 

Teraz potrzebujemy Twojego wsparcia, aby móc wyposażyć naszą przestrzeń i zaprosić do niej osoby z niepełnosprawnościami.

Placówka będzie pomagać osobom po amputacjach stawiać pierwsze kroki na protezach. Centrum Rehabilitacji skupi specjalistów posiadających doświadczenie w pracy z osobami po amputacjach i będzie w pełni dostosowane do potrzeb osób z niepełnosprawnościami narządów ruchu.

 

Specjalistyczny sprzęt diagnostyczny oraz aparatura do rehabilitacji i fizjoterapii, którą zakupimy, pomoże specjalistom nieść pomoc dostosowaną do indywidualnych potrzeb pacjentów.

 

Poza kompleksową rehabilitacją pacjenci będą mogli skorzystać z konsultacji specjalistycznych z ortopedą, diabetologiem, dietetykiem, psychologiem i psychotraumatologiem.

 

Beneficjenci Fundacji będą mogli bezpłatnie korzystać z usług świadczonych w Centrum Rehabilitacji. To szansa dla tych, którzy po amputacji czekają na rehabilitację nawet kilka miesięcy, albo najzwyczajniej w świecie ich na nią nie stać.

Na jakim jesteśmy etapie?

 

W grudniu 2017 roku odebraliśmy klucze do dwóch lokali w stanie surowym od partnera Fundacji – Grupy Buma. W styczniu otrzymaliśmy plany architektoniczne. Aktualnie w lokalach prowadzone są prace wykończeniowe. Przed nami jeszcze umeblowanie i zakup sprzętu rehabilitacyjnego.

Jednak na tym ostatnim etapie potrzebujemy dodatkowego wsparcia.

 

Tak wygląda przestrzeń, która już wkrótce przerodzi się w wyjątkowe Centrum Rehabilitacji.

 

 

Tak finalnie chcielibyśmy zaaranżować posiadane lokale:

 

Sprzęt, który pozwoli nam w pełni wyposażyć Centrum Rehabilitacji, a tym samym zapewnić kompleksową pomoc osobom z niepełnosprawnościami to koszt ponad 300 tys. zł. Kwota 57 tys. zł, którą chcemy zebrać poprzez crowdfunding, pozwoli nam na zakup podstawowego sprzętu, potrzebnego do rozpoczęcia pracy z pacjentami.

 

Jeśli uda nam się zebrać większą kwotę, zakupimy kolejne urządzenia, tworząc tym samym profesjonalną przestrzeń do kompleksowej rehabilitacji.

 

Lista urządzeń, niezbędnych do prowadzenia podstawowej rehabilitacji:

 

 

Leżanki medyczne

Nieodzowny element każdego gabinetu medycznego. Pozwala przeprowadzić badania i podstawowe zabiegi. Potrzebujemy 3 takie leżanki do gabinetów w Centrum Rehabilitacji.

Stoły rehabilitacyjne

Jedno z najbardziej podstawowych narzędzi pracy rehabilitanta. Umożliwia ustawienie różnych kątów nachylenia leżyska. Jeden ze stołów stanie w gabinecie terapii manualnej. Drugi w gabinecie zabiegowym.

Tor do nauki chodu

Poruszanie się w protezie różni się od chodzenia na dwóch zdrowych nogach. Nauka stawiania pierwszych kroków, obciążania protezy i utrzymywania stabilnej postawy ciała jest kluczowa w pracy z osobami po amputacjach. Tor do nauki chodu ułatwia i przyspiesza ten proces.

Schody rehabilitacyjne

Jako osoby w pełni sprawne nie zdajemy sobie sprawy, jaką ilość schodów pokonujemy każdego dnia. Tymczasem jest to najczęściej pojawiająca się przeszkoda w codziennym funkcjonowaniu osób z niepełnosprawnościami. Dzięki schodom do rehabilitacji uczymy pacjentów jak tę przeszkodę pokonywać sprawnie i bezpiecznie.

Aparat do fizykoterapii

Zaawansowane urządzenie do prowadzenia elektroterapii, terapii ultradźwiękowej, laseroterapii i magnetoterapii. Posiada szerokie zastosowania w rehabilitacji, ortopedii, medycynie sportowej, a także neurologii, dermatologii, ginekologii i wellness.

 

Ergometr eliptyczny

Urządzenie rehabilitacyjne i treningowe wykorzystujące opór magnetyczny. Informuje ćwiczącego o aktualnych parametrach treningu. Pozwala na jednoczesny trening dolnych i górnych partii ciała. Będzie to jeden z elementów wyposażenia sali rehabilitacyjno-gimnastycznej.

 

Kwota, jakiej potrzebujemy jest ogromna, ale każda wpłacona złotówka przybliża nas do niej i pozwala w zakupie kolejnych elementów wyposażenia. Dlatego nawet za najdrobniejsze wsparcie jesteśmy niesamowicie wdzięczni.

 

Fundacja Poland Business Run jest głównym organizatorem największego w Polsce biegu charytatywnego – Poland Business Run. W 2017 roku w biegu udział wzięło 20 135 osób w 8 lokalizacjach, dzięki czemu udało się zebrać 1,6 mln złotych na pomoc 212 osobom z niepełnosprawnościami. Z zebranych środków Fundacja finansuje zakup protez, sprzętu, rehabilitacji oraz konsultacji psychologicznych.

 

Zobacz wideorelację z Kraków Business Run 2017:

Dzięki organizacji biegu możemy pomagać osobom z niepełnosprawnościami w powrocie do normalnego życia. Za każdym z naszych beneficjentów stoi indywidualna historia.

 

Poznaj Mateusza - beneficjenta Lublin Business Run 2017:

Niejednokrotnie nasi beneficjenci zaskakują nas swoimi talentami, ambicjami i osiągnięciami. Kasia realizuje się w pływaniu:

Takie historie utwierdzają nas w przekonaniu, że nasza pomoc jest naprawdę ważna i potrzebna.

Ale bieg Poland Business Run to nie wszystko. Realizujemy również projekty aktywizujące dla osób z niepełnosprawnościami:

  • Dni Beneficjenta - spotkanie dla osób z niepełnosprawnościami, podczas którego mogą wymienić się swoimi doświadczeniami.
  • Projekt Senioralny - bezpłatne specjalistyczne konsultacje medyczne dla osób z niepełnosprawnościami w wieku 50+.
  • Adaptiv Snow Camp - pierwszy w Polsce obóz snowboardowy dla osób z niepełnosprawnościami narządów ruchu. 
  • Trenerzy Wsparcia - grupa osób z niepełnosprawnościami przygotowana do pomagania innym niepełnosprawnym w powrocie do normalnego funkcjonowania.

Poruszamy się także w obszarze CSR, tworząc projekty z tego zakresu:

  • Akademia CSR,
  • Warsztaty CSR.

 

Zobacz jak wyglądał Dzień Beneficjenta 2017:

Kolejnym obszarem, na którym zamierzamy działać jest rehabilitacja, a z tym związane jest uruchomienie Centrum Rehabilitacji Poland Business Run. Dzięki Twojemu wsparciu, możemy uczynić śmiały krok w tym kierunku.

Za swoją działalność Fundacja była kilkukrotnie nagradzana:

  • Poland Business Run - Top Event 2017 - Forum Branży Eventowej
  • Kraków Business Run - Pierwsze miejsce w plebiscycie Sportowe Wydarzenie Krakowa 2016
  • Poland Business Run - Top CSR Initiative of the Year - CEE Shared Services and Outsourcing Awards 2015
  • Poland Business Run - MP Power Awards 2014 - MP Power Projekty - CSR w branży eventowej 
  • Poland Buiness Run - Top CSR Initiative od the Year 2013 - CEE Outsourcing and Shared Services Awards 2013

Nad realizacją każdego z tych projektów pracuje na co dzień zespół 11 osób.

Nie dokonalibyśmy jednak tych wszystkich rzeczy sami. Pomagają nam tysiące biegaczy, setki wolontariuszy i dziesiątki sponsorów i partnerów.

Grono przyjaciół Fundacji rośnie z roku na rok. Będzie nam miło, jeśli do niego dołączysz i pomożesz nam postawić na nogi Centrum Rehabilitacji Poland Business Run.

Jakie nagrody przygotowaliśmy dla wspierających?

1. Wlepka - Otrzymujesz fundacyjną naklejkę. Musisz się tylko zastanowić, gdzie ją przykleisz.

2. Wirtualne podziękowanie - Zamieścimy Twoje nazwisko/pseudonim w oficjalnym podziękowaniu na naszej stronie internetowej.

3. Przypinka - Dostaniesz od nas fundacyjną przypinkę, będącą symbolem Twojego zaangażowania w projekt. Możesz wybrać jeden z dwóch wzorów.

4. Długopis - Wysyłamy do Ciebie fundacyjny długopis. Na 100% jeszcze takiego nie masz.

5. Certyfikat darczyńcy - Otrzymasz certyfikat potwierdzający Twoje wsparcie w tworzeniu Centrum Rehabilitacji.

6. Pocztówka - Wyślemy do Ciebie pocztówkę z podziękowaniem od jednego z naszych beneficjentów.

7. Pałeczka Sztafetowa - Pałeczka sztafetowa pozwoli Ci na trenowanie biegów sztafetowych, w szczególności momentu zmiany.

8. Torba - Dostaniesz od nas ekotorbę z wyjątkowym nadrukiem, do której możesz włożyć i nosić, co tylko zechcesz.

9. Frisbee - Ruch na świeżym powietrzu i dobra zabawa z przyjaciółmi too wystarczające powody, aby mieć frisbee.

10. Kubek - Otrzymasz kubek darczyńcy, w którym kawa smakuje o niebo lepiej.

11. Twoje słowa - Masz możliwość napisania manifestu (max. 140 znaków), który umieścimy na jednej ze ścian w Centrum Rehabilitacji i który zobaczą osoby odwiedzające to miejsce.

12. Chusta wielofunkcyjna - Wejdziesz w posiadanie uniwersalnej chusty, z którą każda aktywność sportowa stanie się przyjemniejsza.

13. Notatnik - Dostajesz notatnik do przelewania myśli. Dorzucamy też fundacyjny długopis.

14. Spotkanie - Masz wolną chwilę? Wpadnij na kawę i ciasteczko do naszego biura. Poopowiadamy, co aktualnie robimy.

15. Medal - Unikatowy medal darczyńcy trafi w Twoje ręce. Trwały znak Twojego udziału w powstawaniu Centrum Rehabilitacji.

16. Kalendarz 2019 - Wprawdzie do końca roku jeszcze sporo czasu, ale już teraz możesz zamówić wyjątkowy kalendarz na 2019 rok ze zdjęciami z fundacyjnych projektów.

17. Podziękowanie na filmie - Twoje nazwisko/pseudonim pojawi się w napisach końcowych filmu o powstawaniu Centrum Rehabilitacji.

18. Trochę ruchu - Dostajesz możliwość udziału w zajęciach sportowych organizowanych w sali gimnastycznej naszego Centrum Rehabilitacji.

19. Koszulka - Otrzymujesz limitowaną koszulkę biegową Poland Business Run.

20. Koszulka imienna - Nie tylko otrzymujesz limitowaną koszulkę biegową Poland Business Run, ale na plecach dodrukujemy jeszcze Twoje imię/nazwisko/pseudonim.

21. Taśma do ćwiczeń - Dostajesz oryginalną taśmę rehabilitacyjną, z którą będą ćwiczyć nasi pacjenci. Taśma wspomaga ćwiczenia ogólnorozwojowe. Możesz więc wykorzystać ją do indywidualnych treningów w domu lub na siłowni.

22. Dni beneficjenta - Przyjdź poznać beneficjentów Fundacji podczas Dni Beneficjenta (16-17.06.2018). Weźmiesz udział w rozmowach, warsztatach i wspólnym poczęstunku.

23. Statuetka - Potwierdzamy Twoje wsparcie piękną statuetką darczyńcy. Z pewnością przyozdobi Twoje biurko.

24. Wpis na blogu - Możesz przygotować wpis gościnny na bloga Fundacji o tym, dlaczego lubisz pomagać.

25. Otwarcie Centrum - Zapraszamy Cię na oficjalne otwarcie Centrum Rehabilitacji (planowany termin - lipiec/sierpień). Osobiście pokażemy Ci wszystkie jego zakamarki.

26. Eventowe doświadczenie - Masz możliwość asystowania przy budowaniu miasteczka biegowego Kraków Business Run (1.09.2018 - dzień przed biegiem). Dostajesz identyfikator i możesz zobaczyć od środka, jak powstaje jeden z najlepszych eventów w Polsce.

27. Konferencja prasowa - Zapraszamy Cię na konferencję prasową Poland Business Run w jednym z 8 miast (Kraków, Katowice, Poznań, Warszawa, Łódź, Wrocław, Gdańsk, Lublin), w których odbywa się nasz bieg. Będziesz mieć możliwość, żeby z nami porozmawiać, poznać naszych partnerów i beneficjentów w danym mieście. Konferencje odbywają się od maja do sierpnia.

28. Podziękowanie telefoniczne - Agnieszka Pleti - prezes Fundacji zadzwoni do Ciebie z osobistymi podziękowaniami za wsparcie.

29. Zaproszenie na Galę - Oficjalnie zapraszamy Cię na Galę podsumowującą Poland Business Run, odbywającą się w październiku w Krakowie. Gala połączona jest z występem artystycznym.

30. Wyróżnienie na stronie - Zasługujesz na wyjątkowe wyróżnienie. Zamieścimy na stronie internetowej Centrum Rehabilitacji Twoje zdjęcie, nazwisko i krótki opis.

31. Sala konferencyjna - Szukasz miejsca na przeprowadzenie spotkania biznesowego, szkolenia, albo warsztatów? Możesz skorzystać z sali konferencyjnej Fundacji (max. 16 osób) przez 1 dzień. Sala jest wyposażona w projektor, ekran projekcyjny, flipchart. Przy okazji możesz wypić z nami kawę.

32. VIP - Dostajesz VIP-owski identyfikator na Kraków Business Run (2.09.2018) i zapraszamy Cię do strefy VIP, w której możesz poznać nas, naszych beneficjentów, ambasadorów i partnerów.

33. Obrazek litograficzny - Otrzymujesz wyjątkowe dzieło sztuki - obrazek litograficzny wykonany specjalnie dla Fundacji przez małego artystę - dziecko z niepełnosprawnością.

34. Róbmy CSR - Możesz skonsultować z nami swój projekt CSR-owy. Podpowiemy, jak go zaplanować, pozyskać pieniądze i wypromować.

35. Wręczenie nagród - Masz niepowtarzalną możliwość pogratulowania i wręczenia nagród zwycięzcom akcji "Pomagam Bardziej" w dniu biegu Poland Business Run (2.09.2018) w jednym z miast (Kraków, Poznań, Katowice, Warszawa, Łódź, Wrocław, Gdańsk, Lublin).

36. Udział w biegu - Dostajesz gwarancję udziału w biegu Poland Business Run (2.09.2018) w jednym z 8 miast (Kraków, Katowice, Poznań, Warszawa, Łódź, Wrocław, Gdańsk, Lublin), a dodatkowo możesz wybrać numer startowy, z jakim Twoja drużyna wystartuje w biegu.

36. Wykwintny obiad - Zapraszamy Cię do naszego biura na niesamowite doświadczenia smakowe. Możesz zjeść z nami obiad przygotowany jedną ręką przez naszego fundacyjnego kolegę i znanego kucharza - Piotra Sajdaka.

38. Pakiet sponsorski - Wybierasz jeden z 3 zestawów świadczeń sposnorskich.


Powyższe wizualizacje mogę się nieznacznie różnić od finalnych nagród. Nagrody (w zależności od rodzaju) będą realizowane od zakończenia zbiórki najpóźniej do Gali Poland Business Run w październiku. W przypadku nagród fizycznych (wysyłka pocztą lub kurierem) wspierający zostaną poproszeni o adres do wysyłki w momencie zakończenia zbiórki.

Masz pytania dotyczące Centrum Rehabilitacji? Możesz wesprzeć projekt w inny sposób? Chcesz nawiązać współpracę z Fundacją? Napisz do nas: k.babel@polandbusinessrun.pl

 

Śledź najnowsze informacje o akcji w mediach społecznościowych:

 

Więcej informacji na naszej stronie internetowej: www.polandbusinessrun.pl

 

 

 

PARTNER PROJEKTU:

 

Media o Twoim projekcie:

Postawmy na nogi Centrum Rehabilitacji Fundacji Poland Business Run

www.dziennikpolski24.pl | 2018-03-29

Na wizytę w poradni rehabilitacyjnej czeka się nawet kilkanaście miesięcy. Dla osób po zabiegu amputacji to zdecydowanie za długo. Im dłuższy okres oczekiwania, tym trudniej im wrócić do pełni sprawności. Rozwiązaniem jest powstające w Krakowie Centrum Rehabilitacji Fundacji Poland Business Run.

Postawmy na nogi Centrum Rehabilitacji Fundacji Poland Business Run

krakow.naszemiasto.pl | 2018-03-29

Na wizytę w poradni rehabilitacyjnej czeka się nawet kilkanaście miesięcy. Dla osób po zabiegu amputacji to zdecydowanie za długo. Im dłuższy okres oczekiwania, tym trudniej im wrócić do pełni sprawności. Rozwiązaniem jest powstające w Krakowie Centrum Rehabilitacji Fundacji Poland Business Run.

Postawmy na nogi Centrum Rehabilitacji

wiadomosci.onet.pl | 2018-02-26

Rozpoczynają się prace wykończeniowe nowoczesnego Centrum Rehabilitacji, tworzonego przez Fundację Poland Business Run. Będzie to pierwsze takie miejsce na mapie Krakowa, dla osób z niepełnosprawnościami narządów ruchu.

Postawmy na nogi Centrum Rehabilitacji - trwa zbiórka pieniędzy

www.radioplus.pl | 2018-02-26

Mają już lokal, teraz potrzebują sprzętu. Fundacja Poland Business Run zbiera pieniądze na wyposażenie Centrum Rehabilitacji. To powstająca placówka, w której lekarze pomogą stawiać pierwsze kroki osobom po amputacji kończyn.

Kraków. Ruszyła zbiórka pieniędzy na sprzęt dla Centrum Rehabilitacji Fundacji Poland Business Run

www.dziennikpolski24.pl | 2018-02-23

Fundacja Poland Business Run zbiera środki na zakup niezbędnego wyposażenia Centrum Rehabilitacji dla osób po amputacjach kończyn, które powstaje w Krakowie.

Kraków. Ruszyła zbiórka pieniędzy na sprzęt dla Centrum Rehabilitacji Fundacji Poland Business Run

www.gazetakrakowska.pl | 2018-02-23

Fundacja Poland Business Run zbiera środki na zakup niezbędnego wyposażenia Centrum Rehabilitacji dla osób po amputacjach kończyn, które powstaje w Krakowie.

Model finansowania: "wszystko albo nic"

Aby otrzymać środki, projekt musi osiągnąć minimum 100% finansowania do 06.04.2018 22:10

PolakPotrafi.pl - zbiórka: Postawmy na nogi Centrum Rehabilitacji

Miło Cię widzieć!

Ładowanie strony

O projektodawcy

Fundacja Poland Business Run

Fundacja Poland Business Run

Kraków, Polska

Misją Fundacji Poland Business Run jest kompleksowa oraz profesjonalna pomoc osobom z niepełnosprawnościami narządów ruchu, pomoc w ich aktywizacji oraz niwelowanie barier społecznych, a także wsparcie osób zagrożonych amputacją. Fundacja upowszechnia wiedzę na temat niepełnosprawności narządów ruchu oraz stara się wpłynąć na zmianę postrzegania osób z wyżej wymienionymi problemami. W 2018 roku otwiera w Krakowie profesjonalne Centrum Rehabilitacji.

Napisz wiadomość do Projektodawcy

57300 PLN z 57000 PLN

133 Wspierający

Udany! Cel osiągnięty

100%

Model finansowania: "wszystko albo nic". Aby otrzymać środki, projekt musi osiągnąć minimum 100% finansowania do 06.04.2018.

Postawmy na nogi Centrum Rehabilitacji

This project is also available in english version. Click here to change language.

O projekcie

Fundacja Poland Business Run tworzy w Krakowie nowoczesne Centrum Rehabilitacji dla osób z niepełnosprawnościami narządów ruchu. Mamy już przestrzeń i specjalistów. Właśnie rozpoczynają się prace wykończeniowe. Brakuje tylko jednego - profesjonalnego sprzętu do rehabilitacji, z którego bedą mogli bezpłatnie korzystać beneficjenci Fundacji. Pomóż nam w jego zakupie.

 

W 2017 roku przekazaliśmy ponad milion złotych na pomoc 212 osobom z niepełnosprawnościami, finansując zakup sprzętu, protez, rehabilitacji i konsultacji psychologicznych. Dbamy o to, aby w kompleksowy sposób pomagać naszym podopiecznym w powrocie do normalnego życia.

 

Liczba osób, które zwracają się do nas o wsparcie rośnie z roku na rok. Aby takie wsparcie zapewnić, potrzebujemy miejsca, gdzie nasi specjaliści mogliby pracować z podopiecznymi.

Właśnie dlatego postanowiliśmy podjąć decyzję o utworzeniu Centrum Rehabilitacji Fundacji Poland Business Run. W 2017 roku otrzymaliśmy od Grupy Buma 2 lokale użytkowe i nasze marzenia o Centrum stały się rzeczywistością.

 

Teraz potrzebujemy Twojego wsparcia, aby móc wyposażyć naszą przestrzeń i zaprosić do niej osoby z niepełnosprawnościami.

Placówka będzie pomagać osobom po amputacjach stawiać pierwsze kroki na protezach. Centrum Rehabilitacji skupi specjalistów posiadających doświadczenie w pracy z osobami po amputacjach i będzie w pełni dostosowane do potrzeb osób z niepełnosprawnościami narządów ruchu.

 

Specjalistyczny sprzęt diagnostyczny oraz aparatura do rehabilitacji i fizjoterapii, którą zakupimy, pomoże specjalistom nieść pomoc dostosowaną do indywidualnych potrzeb pacjentów.

 

Poza kompleksową rehabilitacją pacjenci będą mogli skorzystać z konsultacji specjalistycznych z ortopedą, diabetologiem, dietetykiem, psychologiem i psychotraumatologiem.

 

Beneficjenci Fundacji będą mogli bezpłatnie korzystać z usług świadczonych w Centrum Rehabilitacji. To szansa dla tych, którzy po amputacji czekają na rehabilitację nawet kilka miesięcy, albo najzwyczajniej w świecie ich na nią nie stać.

Na jakim jesteśmy etapie?

 

W grudniu 2017 roku odebraliśmy klucze do dwóch lokali w stanie surowym od partnera Fundacji – Grupy Buma. W styczniu otrzymaliśmy plany architektoniczne. Aktualnie w lokalach prowadzone są prace wykończeniowe. Przed nami jeszcze umeblowanie i zakup sprzętu rehabilitacyjnego.

Jednak na tym ostatnim etapie potrzebujemy dodatkowego wsparcia.

 

Tak wygląda przestrzeń, która już wkrótce przerodzi się w wyjątkowe Centrum Rehabilitacji.

 

 

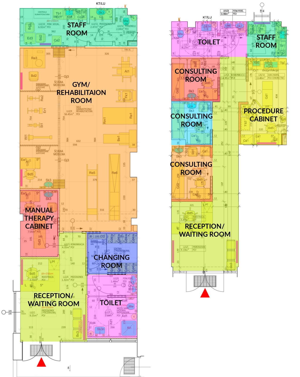
Tak finalnie chcielibyśmy zaaranżować posiadane lokale:

 

Sprzęt, który pozwoli nam w pełni wyposażyć Centrum Rehabilitacji, a tym samym zapewnić kompleksową pomoc osobom z niepełnosprawnościami to koszt ponad 300 tys. zł. Kwota 57 tys. zł, którą chcemy zebrać poprzez crowdfunding, pozwoli nam na zakup podstawowego sprzętu, potrzebnego do rozpoczęcia pracy z pacjentami.

 

Jeśli uda nam się zebrać większą kwotę, zakupimy kolejne urządzenia, tworząc tym samym profesjonalną przestrzeń do kompleksowej rehabilitacji.

 

Lista urządzeń, niezbędnych do prowadzenia podstawowej rehabilitacji:

 

 

Leżanki medyczne

Nieodzowny element każdego gabinetu medycznego. Pozwala przeprowadzić badania i podstawowe zabiegi. Potrzebujemy 3 takie leżanki do gabinetów w Centrum Rehabilitacji.

Stoły rehabilitacyjne

Jedno z najbardziej podstawowych narzędzi pracy rehabilitanta. Umożliwia ustawienie różnych kątów nachylenia leżyska. Jeden ze stołów stanie w gabinecie terapii manualnej. Drugi w gabinecie zabiegowym.

Tor do nauki chodu

Poruszanie się w protezie różni się od chodzenia na dwóch zdrowych nogach. Nauka stawiania pierwszych kroków, obciążania protezy i utrzymywania stabilnej postawy ciała jest kluczowa w pracy z osobami po amputacjach. Tor do nauki chodu ułatwia i przyspiesza ten proces.

Schody rehabilitacyjne

Jako osoby w pełni sprawne nie zdajemy sobie sprawy, jaką ilość schodów pokonujemy każdego dnia. Tymczasem jest to najczęściej pojawiająca się przeszkoda w codziennym funkcjonowaniu osób z niepełnosprawnościami. Dzięki schodom do rehabilitacji uczymy pacjentów jak tę przeszkodę pokonywać sprawnie i bezpiecznie.

Aparat do fizykoterapii

Zaawansowane urządzenie do prowadzenia elektroterapii, terapii ultradźwiękowej, laseroterapii i magnetoterapii. Posiada szerokie zastosowania w rehabilitacji, ortopedii, medycynie sportowej, a także neurologii, dermatologii, ginekologii i wellness.

 

Ergometr eliptyczny

Urządzenie rehabilitacyjne i treningowe wykorzystujące opór magnetyczny. Informuje ćwiczącego o aktualnych parametrach treningu. Pozwala na jednoczesny trening dolnych i górnych partii ciała. Będzie to jeden z elementów wyposażenia sali rehabilitacyjno-gimnastycznej.

 

Kwota, jakiej potrzebujemy jest ogromna, ale każda wpłacona złotówka przybliża nas do niej i pozwala w zakupie kolejnych elementów wyposażenia. Dlatego nawet za najdrobniejsze wsparcie jesteśmy niesamowicie wdzięczni.

 

Fundacja Poland Business Run jest głównym organizatorem największego w Polsce biegu charytatywnego – Poland Business Run. W 2017 roku w biegu udział wzięło 20 135 osób w 8 lokalizacjach, dzięki czemu udało się zebrać 1,6 mln złotych na pomoc 212 osobom z niepełnosprawnościami. Z zebranych środków Fundacja finansuje zakup protez, sprzętu, rehabilitacji oraz konsultacji psychologicznych.

 

Zobacz wideorelację z Kraków Business Run 2017:

Dzięki organizacji biegu możemy pomagać osobom z niepełnosprawnościami w powrocie do normalnego życia. Za każdym z naszych beneficjentów stoi indywidualna historia.

 

Poznaj Mateusza - beneficjenta Lublin Business Run 2017:

Niejednokrotnie nasi beneficjenci zaskakują nas swoimi talentami, ambicjami i osiągnięciami. Kasia realizuje się w pływaniu:

Takie historie utwierdzają nas w przekonaniu, że nasza pomoc jest naprawdę ważna i potrzebna.

Ale bieg Poland Business Run to nie wszystko. Realizujemy również projekty aktywizujące dla osób z niepełnosprawnościami:

  • Dni Beneficjenta - spotkanie dla osób z niepełnosprawnościami, podczas którego mogą wymienić się swoimi doświadczeniami.
  • Projekt Senioralny - bezpłatne specjalistyczne konsultacje medyczne dla osób z niepełnosprawnościami w wieku 50+.
  • Adaptiv Snow Camp - pierwszy w Polsce obóz snowboardowy dla osób z niepełnosprawnościami narządów ruchu. 
  • Trenerzy Wsparcia - grupa osób z niepełnosprawnościami przygotowana do pomagania innym niepełnosprawnym w powrocie do normalnego funkcjonowania.

Poruszamy się także w obszarze CSR, tworząc projekty z tego zakresu:

  • Akademia CSR,
  • Warsztaty CSR.

 

Zobacz jak wyglądał Dzień Beneficjenta 2017:

Kolejnym obszarem, na którym zamierzamy działać jest rehabilitacja, a z tym związane jest uruchomienie Centrum Rehabilitacji Poland Business Run. Dzięki Twojemu wsparciu, możemy uczynić śmiały krok w tym kierunku.

Za swoją działalność Fundacja była kilkukrotnie nagradzana:

  • Poland Business Run - Top Event 2017 - Forum Branży Eventowej
  • Kraków Business Run - Pierwsze miejsce w plebiscycie Sportowe Wydarzenie Krakowa 2016
  • Poland Business Run - Top CSR Initiative of the Year - CEE Shared Services and Outsourcing Awards 2015
  • Poland Business Run - MP Power Awards 2014 - MP Power Projekty - CSR w branży eventowej 
  • Poland Buiness Run - Top CSR Initiative od the Year 2013 - CEE Outsourcing and Shared Services Awards 2013

Nad realizacją każdego z tych projektów pracuje na co dzień zespół 11 osób.

Nie dokonalibyśmy jednak tych wszystkich rzeczy sami. Pomagają nam tysiące biegaczy, setki wolontariuszy i dziesiątki sponsorów i partnerów.

Grono przyjaciół Fundacji rośnie z roku na rok. Będzie nam miło, jeśli do niego dołączysz i pomożesz nam postawić na nogi Centrum Rehabilitacji Poland Business Run.

Jakie nagrody przygotowaliśmy dla wspierających?

1. Wlepka - Otrzymujesz fundacyjną naklejkę. Musisz się tylko zastanowić, gdzie ją przykleisz.

2. Wirtualne podziękowanie - Zamieścimy Twoje nazwisko/pseudonim w oficjalnym podziękowaniu na naszej stronie internetowej.

3. Przypinka - Dostaniesz od nas fundacyjną przypinkę, będącą symbolem Twojego zaangażowania w projekt. Możesz wybrać jeden z dwóch wzorów.

4. Długopis - Wysyłamy do Ciebie fundacyjny długopis. Na 100% jeszcze takiego nie masz.

5. Certyfikat darczyńcy - Otrzymasz certyfikat potwierdzający Twoje wsparcie w tworzeniu Centrum Rehabilitacji.

6. Pocztówka - Wyślemy do Ciebie pocztówkę z podziękowaniem od jednego z naszych beneficjentów.

7. Pałeczka Sztafetowa - Pałeczka sztafetowa pozwoli Ci na trenowanie biegów sztafetowych, w szczególności momentu zmiany.

8. Torba - Dostaniesz od nas ekotorbę z wyjątkowym nadrukiem, do której możesz włożyć i nosić, co tylko zechcesz.

9. Frisbee - Ruch na świeżym powietrzu i dobra zabawa z przyjaciółmi too wystarczające powody, aby mieć frisbee.

10. Kubek - Otrzymasz kubek darczyńcy, w którym kawa smakuje o niebo lepiej.

11. Twoje słowa - Masz możliwość napisania manifestu (max. 140 znaków), który umieścimy na jednej ze ścian w Centrum Rehabilitacji i który zobaczą osoby odwiedzające to miejsce.

12. Chusta wielofunkcyjna - Wejdziesz w posiadanie uniwersalnej chusty, z którą każda aktywność sportowa stanie się przyjemniejsza.

13. Notatnik - Dostajesz notatnik do przelewania myśli. Dorzucamy też fundacyjny długopis.

14. Spotkanie - Masz wolną chwilę? Wpadnij na kawę i ciasteczko do naszego biura. Poopowiadamy, co aktualnie robimy.

15. Medal - Unikatowy medal darczyńcy trafi w Twoje ręce. Trwały znak Twojego udziału w powstawaniu Centrum Rehabilitacji.

16. Kalendarz 2019 - Wprawdzie do końca roku jeszcze sporo czasu, ale już teraz możesz zamówić wyjątkowy kalendarz na 2019 rok ze zdjęciami z fundacyjnych projektów.

17. Podziękowanie na filmie - Twoje nazwisko/pseudonim pojawi się w napisach końcowych filmu o powstawaniu Centrum Rehabilitacji.

18. Trochę ruchu - Dostajesz możliwość udziału w zajęciach sportowych organizowanych w sali gimnastycznej naszego Centrum Rehabilitacji.

19. Koszulka - Otrzymujesz limitowaną koszulkę biegową Poland Business Run.

20. Koszulka imienna - Nie tylko otrzymujesz limitowaną koszulkę biegową Poland Business Run, ale na plecach dodrukujemy jeszcze Twoje imię/nazwisko/pseudonim.

21. Taśma do ćwiczeń - Dostajesz oryginalną taśmę rehabilitacyjną, z którą będą ćwiczyć nasi pacjenci. Taśma wspomaga ćwiczenia ogólnorozwojowe. Możesz więc wykorzystać ją do indywidualnych treningów w domu lub na siłowni.

22. Dni beneficjenta - Przyjdź poznać beneficjentów Fundacji podczas Dni Beneficjenta (16-17.06.2018). Weźmiesz udział w rozmowach, warsztatach i wspólnym poczęstunku.

23. Statuetka - Potwierdzamy Twoje wsparcie piękną statuetką darczyńcy. Z pewnością przyozdobi Twoje biurko.

24. Wpis na blogu - Możesz przygotować wpis gościnny na bloga Fundacji o tym, dlaczego lubisz pomagać.

25. Otwarcie Centrum - Zapraszamy Cię na oficjalne otwarcie Centrum Rehabilitacji (planowany termin - lipiec/sierpień). Osobiście pokażemy Ci wszystkie jego zakamarki.

26. Eventowe doświadczenie - Masz możliwość asystowania przy budowaniu miasteczka biegowego Kraków Business Run (1.09.2018 - dzień przed biegiem). Dostajesz identyfikator i możesz zobaczyć od środka, jak powstaje jeden z najlepszych eventów w Polsce.

27. Konferencja prasowa - Zapraszamy Cię na konferencję prasową Poland Business Run w jednym z 8 miast (Kraków, Katowice, Poznań, Warszawa, Łódź, Wrocław, Gdańsk, Lublin), w których odbywa się nasz bieg. Będziesz mieć możliwość, żeby z nami porozmawiać, poznać naszych partnerów i beneficjentów w danym mieście. Konferencje odbywają się od maja do sierpnia.

28. Podziękowanie telefoniczne - Agnieszka Pleti - prezes Fundacji zadzwoni do Ciebie z osobistymi podziękowaniami za wsparcie.

29. Zaproszenie na Galę - Oficjalnie zapraszamy Cię na Galę podsumowującą Poland Business Run, odbywającą się w październiku w Krakowie. Gala połączona jest z występem artystycznym.

30. Wyróżnienie na stronie - Zasługujesz na wyjątkowe wyróżnienie. Zamieścimy na stronie internetowej Centrum Rehabilitacji Twoje zdjęcie, nazwisko i krótki opis.

31. Sala konferencyjna - Szukasz miejsca na przeprowadzenie spotkania biznesowego, szkolenia, albo warsztatów? Możesz skorzystać z sali konferencyjnej Fundacji (max. 16 osób) przez 1 dzień. Sala jest wyposażona w projektor, ekran projekcyjny, flipchart. Przy okazji możesz wypić z nami kawę.

32. VIP - Dostajesz VIP-owski identyfikator na Kraków Business Run (2.09.2018) i zapraszamy Cię do strefy VIP, w której możesz poznać nas, naszych beneficjentów, ambasadorów i partnerów.

33. Obrazek litograficzny - Otrzymujesz wyjątkowe dzieło sztuki - obrazek litograficzny wykonany specjalnie dla Fundacji przez małego artystę - dziecko z niepełnosprawnością.

34. Róbmy CSR - Możesz skonsultować z nami swój projekt CSR-owy. Podpowiemy, jak go zaplanować, pozyskać pieniądze i wypromować.

35. Wręczenie nagród - Masz niepowtarzalną możliwość pogratulowania i wręczenia nagród zwycięzcom akcji "Pomagam Bardziej" w dniu biegu Poland Business Run (2.09.2018) w jednym z miast (Kraków, Poznań, Katowice, Warszawa, Łódź, Wrocław, Gdańsk, Lublin).

36. Udział w biegu - Dostajesz gwarancję udziału w biegu Poland Business Run (2.09.2018) w jednym z 8 miast (Kraków, Katowice, Poznań, Warszawa, Łódź, Wrocław, Gdańsk, Lublin), a dodatkowo możesz wybrać numer startowy, z jakim Twoja drużyna wystartuje w biegu.

36. Wykwintny obiad - Zapraszamy Cię do naszego biura na niesamowite doświadczenia smakowe. Możesz zjeść z nami obiad przygotowany jedną ręką przez naszego fundacyjnego kolegę i znanego kucharza - Piotra Sajdaka.

38. Pakiet sponsorski - Wybierasz jeden z 3 zestawów świadczeń sposnorskich.


Powyższe wizualizacje mogę się nieznacznie różnić od finalnych nagród. Nagrody (w zależności od rodzaju) będą realizowane od zakończenia zbiórki najpóźniej do Gali Poland Business Run w październiku. W przypadku nagród fizycznych (wysyłka pocztą lub kurierem) wspierający zostaną poproszeni o adres do wysyłki w momencie zakończenia zbiórki.

Masz pytania dotyczące Centrum Rehabilitacji? Możesz wesprzeć projekt w inny sposób? Chcesz nawiązać współpracę z Fundacją? Napisz do nas: k.babel@polandbusinessrun.pl

 

Śledź najnowsze informacje o akcji w mediach społecznościowych:

 

Więcej informacji na naszej stronie internetowej: www.polandbusinessrun.pl

 

 

 

PARTNER PROJEKTU:

 

Media o Twoim projekcie:

Postawmy na nogi Centrum Rehabilitacji Fundacji Poland Business Run

www.dziennikpolski24.pl | 2018-03-29

Na wizytę w poradni rehabilitacyjnej czeka się nawet kilkanaście miesięcy. Dla osób po zabiegu amputacji to zdecydowanie za długo. Im dłuższy okres oczekiwania, tym trudniej im wrócić do pełni sprawności. Rozwiązaniem jest powstające w Krakowie Centrum Rehabilitacji Fundacji Poland Business Run.

Postawmy na nogi Centrum Rehabilitacji Fundacji Poland Business Run

krakow.naszemiasto.pl | 2018-03-29

Na wizytę w poradni rehabilitacyjnej czeka się nawet kilkanaście miesięcy. Dla osób po zabiegu amputacji to zdecydowanie za długo. Im dłuższy okres oczekiwania, tym trudniej im wrócić do pełni sprawności. Rozwiązaniem jest powstające w Krakowie Centrum Rehabilitacji Fundacji Poland Business Run.

Postawmy na nogi Centrum Rehabilitacji

wiadomosci.onet.pl | 2018-02-26

Rozpoczynają się prace wykończeniowe nowoczesnego Centrum Rehabilitacji, tworzonego przez Fundację Poland Business Run. Będzie to pierwsze takie miejsce na mapie Krakowa, dla osób z niepełnosprawnościami narządów ruchu.

Postawmy na nogi Centrum Rehabilitacji - trwa zbiórka pieniędzy

www.radioplus.pl | 2018-02-26

Mają już lokal, teraz potrzebują sprzętu. Fundacja Poland Business Run zbiera pieniądze na wyposażenie Centrum Rehabilitacji. To powstająca placówka, w której lekarze pomogą stawiać pierwsze kroki osobom po amputacji kończyn.

Kraków. Ruszyła zbiórka pieniędzy na sprzęt dla Centrum Rehabilitacji Fundacji Poland Business Run

www.dziennikpolski24.pl | 2018-02-23

Fundacja Poland Business Run zbiera środki na zakup niezbędnego wyposażenia Centrum Rehabilitacji dla osób po amputacjach kończyn, które powstaje w Krakowie.

Kraków. Ruszyła zbiórka pieniędzy na sprzęt dla Centrum Rehabilitacji Fundacji Poland Business Run

www.gazetakrakowska.pl | 2018-02-23

Fundacja Poland Business Run zbiera środki na zakup niezbędnego wyposażenia Centrum Rehabilitacji dla osób po amputacjach kończyn, które powstaje w Krakowie.

Model finansowania: "wszystko albo nic"

Aby otrzymać środki, projekt musi osiągnąć minimum 100% finansowania do 06.04.2018 22:10